- Programmes : Réhabilitation d’un corps de ferme, isolation en bottes de paille
- Commune : Cappelle-en-Pévèle (59)
- Maîtrise d’ouvrage : Privé
- Maîtrise d’oeuvre : Citymix architecture I Géonomia, Ingénieur thermique I Cindy Delaleau, Paysagiste
- Mission : Complète
- Montant des travaux : non diffusé
- Avancement : PC août 2022
Cappelle-en-Pévèle (59)
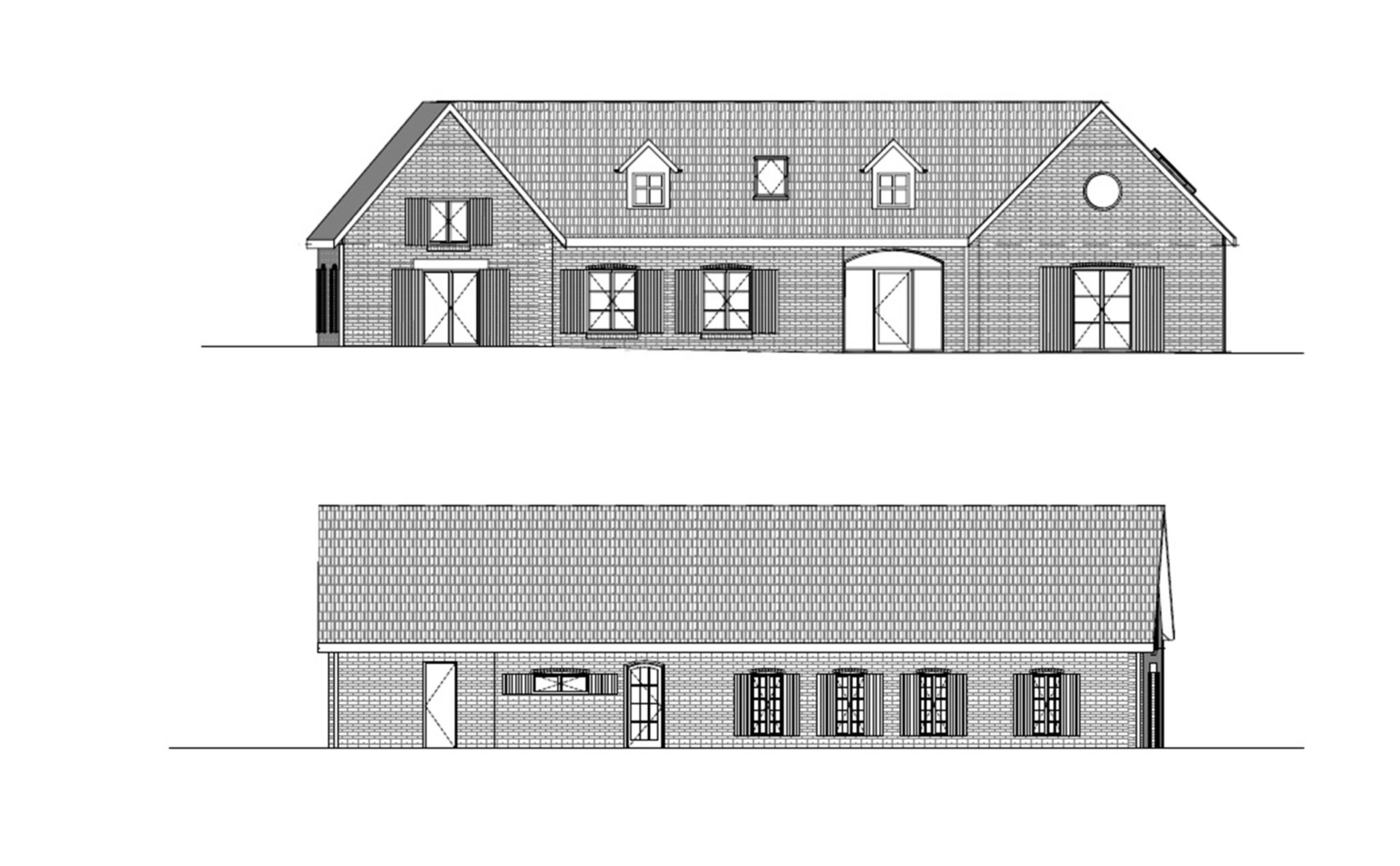
Le projet vise à rénover thermiquement une partie du corps de ferme et à reconstruire une aile dans le volume existant en utilisant des matériaux biosourcés.
Un nouveau séjour, une chambre parentale et une mezzanine/bureau y trouveront leur place. Un carport sera installé à proximité du nouveau volume.
Le projet revisitera également le jardin et l’aménagement intérieur, le mobilier.
On veillera à réemployer les matériaux in situ liés à la démolition
Le foyer souhaite rénover son habitat en conservant les aspects vernaculaires du corps de ferme.
Le projet conservera donc son volume initial. L’aile ouest sera reconstruite dans son volume, avec un nouveau plancher et une avancée couverte. Les matériaux utilisés pour la reconstruction seront des matériaux sains (bois/paille/isolant biosourcés/parquet bois)
L’aile est sera rénovée, isolée, ventilée, y compris les combles.









