- Programme : une aire de sport intercommunale niveau régional, un club house, parc de stationnement, parcours pédagogique scolaire
- Commune : Verchain-Maugré (59)
- Maîtrise d’ouvrage : Ville de Verchain-Maugré
- Maîtrise d’oeuvre : JINKAU, PROJEX, DIAGOBAT
- Concours : 2019
Commune de Verchain-Maugré, 59
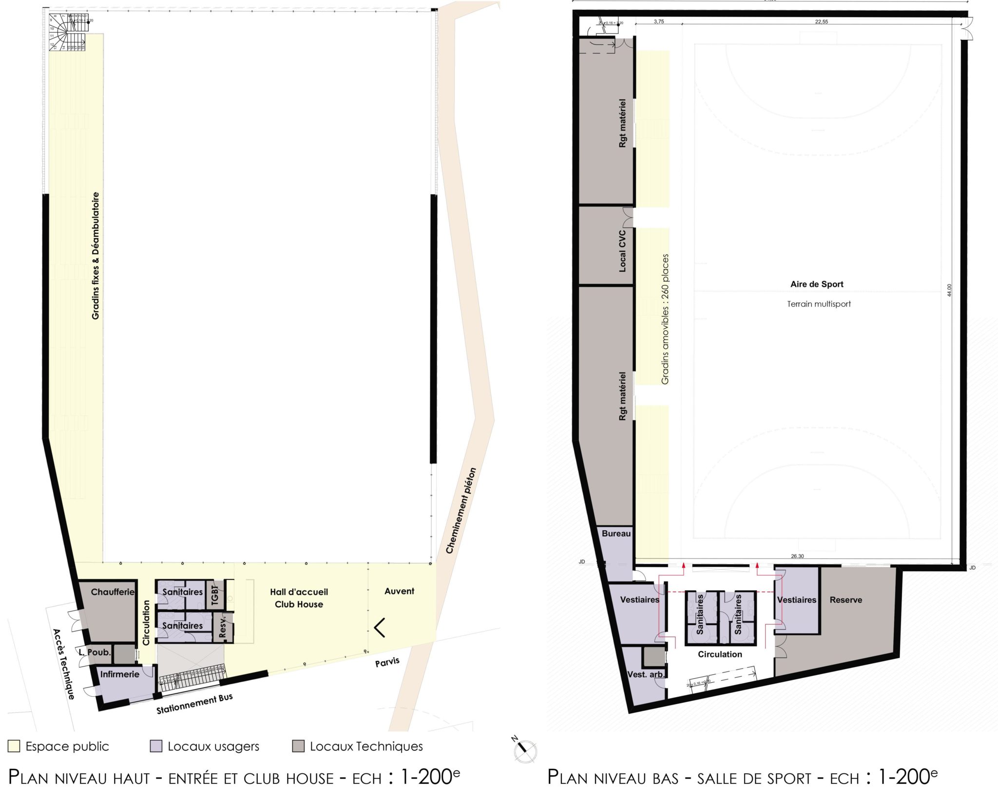
Le terrain se situe au cœur d’un tissu bâti peu dense et principalement résidentiel.
En parti enterré, pour y accéder, un axe de circulation douce Nord-Sud est créé. Le bâtiment s’inscrit dans la pente du terrain sous forme de 3 strates qui le découpent, représentées avec un bardage bois vertical calepiné en pourtour de façades.
3 strates découpées de bois :
– le socle semi-enterré inscrit dans le site, logeant l’aire sportive
– le rez-de-parvis, circulation et locaux à usages d’accueil des visiteurs/sportifs
– la couverture dotée d’un shed en bandeau longitudinal
On accède en partie haute au rez-de-chaussée sous un auvent majestueux avec une vue sur la salle de sport en contrebas. Dans l’aire de sport, de grands bandeaux vitrés offrent une vue vers la végétation en contrebas du terrain. Une faille en toiture créée un long bandeau vitré pour diffuser de la lumière naturelle diffuse dans la salle de sport et donne à voir la charpente en bois rythmé de « poutre-branche ».
Imaginez des jeux de balles, il nous vient très rapidement l’image d’un rebond. Celui-ci est un fi l qui se matérialise à la fois sur les murs mais aussi dans les espaces de circulation. Un éclairage et une ventilation naturelles garantissent le confort des usagers et la pratique du sport dans les meilleures conditions. Ils seront réalisés à l’aide d’un bandeau vitré ouvrant en toiture sous forme d’un shed.
Le hall est conçu comme une extension du parvis, soulèvement de la dernière strate. Le bardage bois et le verre constituent l’intégralité de l’enveloppe du bâtiment. La pose en claire-voie permet de créer un brise soleil au moment où elle est mise
en oeuvre devant le vitrage, évite la surchauffe, l’éblouissement et les vis-à-vis.
L’espace extérieur est conçu de manière à ressentir au maximum l’environnement naturel du lieu.





