- Programme : Création d’une passerelle et rénovation du pont-canal sur la Seine, Barberey-Saint-Sulpice
- Commune : Ville de Barberey-Saint-Sulpice (10)
- Maîtrise d’ouvrage : Conseil Général de l’Aube
- Maitrise d’œuvre : Citymix architecture, ACOGEC ingénieurs ouvrages d’art, Charles Costantini, modélisation
- Montant des travaux : 287 076€ HT passerelle / 802 019€ HT pont canal
- Livré : 2015
Ville de Barberey Saint Sulpice
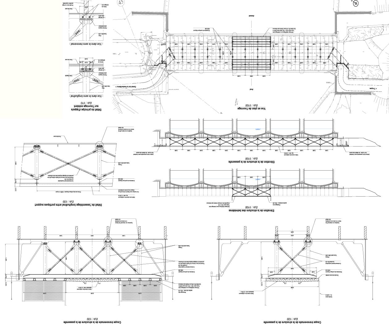
Afin d’assurer la continuité d’un projet de Véloroute, une passerelle pour modes doux (piétons, cyclistes, rollers…) doit être édifiée à l’intérieur d’un ancien pont-canal, aujourd’hui mis à sec. Ce pont canal franchit la Seine et est inscrit à l’inventaire Supplémentaire des Monuments Historiques. Il fait également l’objet de travaux de restauration, inclus dans la prestation.
La passerelle :
D’une largeur utile de 3 mètres et d’un niveau fini uniforme et horizontal, la passerelle est conçue comme un plateau aérien au cœur du pont canal. Deux belvédères, à mi-longueur, permettent de faire une halte et de profiter du panorama majestueux sur la Seine. Puis, la passerelle se connecte au droit des culées existantes sur consoles de support.
Le pont canal :
Les parties métalliques du pont, bâche en acier et garde corps, sont rénovées. Les éléments manquants, détériorés et aux caractéristiques mécaniques insuffisantes sont remplacés. Après sablage, une peinture est appliquée restituant les teintes d’origine : ton clair gris lumière pour la bâche intérieure et extérieure ; ton foncé rouge pourpre pour les arcs, étrésillons, membrures verticales et garde corps.








